г. Октябрьский, ул. Кувыкина, д. 3
+7 (34767) 67-0-25
В декабре месяце ввод
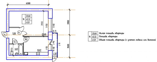
В декабре планируем ввод первых двух подъездов дома №4 по ул. Ляйлы Марданшиной.

Квартиры в чистовой отделке, на полах постелен линолеум, потолки натяжные. Установлены межкомнатные двери, смонтирована сантехника. Во дворе оборудованы детская площадка, огражденное футбольное поле. Спешите купить понравившуюся квартиру.
23 ноября 2020
E-mail:
ПН-ЧТ: с 08:30 до 18:00
ПТ: с 08:30 до 14:30
обед: с 13:00 до 14:00
СБ, ВС: Выходной
Задайте любой вопрос напрямую в:
domnalenina@stroneg-rb.ru
Приглашаем
в офис продаж
ГЛАВНАЯ
О КОМПАНИИ
РБ, г. Октябрьский, ул. Кувыкина, дом 3
ПН-ЧТ: с 08:30 до 18:00
ПТ: с 08:30 до 14:30
СБ, ВС: Выходной
Copyright © ОАО «Стронег», 2023г. Все права защищены.
Copyright © ОАО «Стронег», 2024г. Все права защищены.
Разработано в: Madplay